:: ûÁÖ Àü¿øÁÖÅà °ÇÃà ::
»ç¶û½º·¯¿î ÇÎÅ© ÀÎÅ׸®¾î ¢½

C O N C E P T ¢º ÇÎÅ© ÀÎÅ׸®¾î
-¹àÀº ÈÀÌÆ®Ä÷¯¸¦ ±âº»À¸·Î Åæ´Ù¿îµÈ ÇÎÅ©Ä÷¯°¡ Á¶È¸¦ ÀÌ·ç´Â
¿©¼º½º·´°í ·Î¸ÇƽÇÑ Å¬·¡½Ä ½ºÅ¸ÀÏ.

2ÃþÀ¸·Î ÁöÀº ûÁÖ Àü¿øÁÖÅÃ!
¿Ü°ü 3D ÄÆ
¡Ú
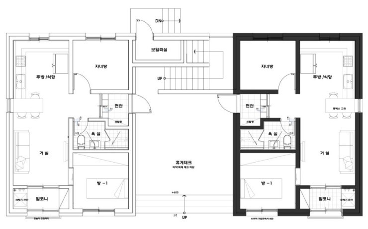
1ÃþÀº ¾çÂÊÀ¸·Î 2¼¼´ë, 2Ãþ¿¡ 1¼¼´ë°¡ ÀÖ´Â ÁýÀÔ´Ï´Ù
ÇѰ¡Á·ÀÌÁö¸¸ ¶Ç ¼¼°¡Á·À̱⵵ ÇÑ ÁÖÅÃÀÇ Æ¯¼ºÀ» °í·ÁÇÏ¿©
Çö°ü¹®Àº ÃÑ 3°³·Î °¢°¢ µ¶¸³¼ºÀ» ÁÖ¾ú°í,
¼¼´ëº° °£¼·ÀÌ ¾øµµ·Ï 1Ãþ µÎ¼¼´ë´Â ¸Ö¸® ¶³¾îÆ®¸®°í
¶³¾îÆ®¸° ±× »çÀÌ °ø°£À» ÀÌ¿ëÇÏ¿© 3¼¼´ë°¡ ¸ðµÎ ¸ðÀÏ ¼ö ÀÖ´Â ¼ÒÅëÀÇ °ø°£À» ¸¸µé¾ú½À´Ï´Ù.
1Ãþ ¼¼´ë ¼Ò°³Çص帳´Ï´Ù :)

<1Ãþ-(R)>

¡á Çö°ü
- Ŭ·¡½ÄÇÑ ´À³¦ÀÇ ½Å¹ßÀå µµ¾î¸¦ ¼³Ä¡ÇÏ¿´°í, ½Å¹ßÀå ÇϺο¡ °£Á¢Á¶¸íÀ» ¼³Ä¡ÇÏ¿© ÀºÀºÇÑ ºÐÀ§±â¸¦ ¿¬ÃâÇÏ¿´´Ù.
- Çö°ü¹®°ú Áß¹®Àº ÀεðÇÎÅ©¸¦ »ç¿ëÇÏ¿© ·Î¸ÇƽÇÑ ºÐÀ§±â ¿¬Ãâ.
- ºí·¢&ºê¶ó¿î ÆÐÅÏ ¹Ù´Ú ŸÀÏ·Î ¹«°Ô°¨À» ´õÇÏ¿©ÁÖ°í, ¼§µé¸®¿¡ Çö°ü Á¶¸íÀ¸·Î °í±Þ½º·´°Ô ¿¬Ãâ.


¡á °Å½Ç
- ¸éÀûÀÌ ³ÐÁö ¾ÊÀº °Å½Ç.
TV¿ù ÂÊ¿¡ µµ¾î°¡ ÀÖ¾î ÀÚÄ© °Å½ÇÀÌ ´õ¿í Á¼°Ô ´À²¸Áú ¼ö ÀÖ¾î, µµ¾î¸¦ ¾ÆÆ®¿ù°ú ¿¬°áµÈ ´À³¦À¸·Î ½Ã°øÇÏ¿© ÇϳªÀÇ º®Ã¼Ã³·³ º¸ÀÌ°Ô ¿¬Ãâ.
- ¾ÆÆ®¿ùÀº ¿þÀνºÄÚÆÃÀ¸·Î µðÀÚÀÎÇÏ¿© ƯÀ¯ÀÇ Å¬·¡½ÄÇÑ ´À³¦À¸·Î °ø°£À» ¿ì¾ÆÇÏ°í °í±Þ½º·´°Ô ¿¬ÃâÇÏ¿´´Ù.
- ·Î¸ÇƽÇÑ °Å½Ç Á¶¸í°ú ½Ç¹ö Ä÷¯ÀÇ º®Áö¸¦ ½Ã°øÇÏ¿© Â÷ºÐÇϸ鼵µ ¼¼·ÃµÈ ´À³¦À¸·Î ¿Ï¼ºÇÑ °Å½Ç.

¡á ÁÖ¹æ
- Å©¸² »ö»óÀÇ Å¬·¡½ÄÇÑ ½ÌÅ©´ë¿¡ ÀÔü°¨ ÀÖ´Â ÈÀÌÆ® ŸÀÏÀ» ½Ã°øÇÏ¿© ¿ì¾ÆÇÑ ´À³¦À¸·Î ¿¬ÃâÇÑ ÁÖ¹æ. Ŭ·¡½ÄÇÑ ´À³¦ÀÇ ¼ÕÀâÀÌ´Â ·Î¸ÇƽÇÑ ºÐÀ§±â¸¦ ±Ø´ëÈÇÑ´Ù.
- ¾ÆÀÏ·£µå ½ÄŹ¿¡´Â ¼§µé¸®¿¡ Á¶¸íÀ» ½Ã°øÇÏ¿© °í±Þ½º·¯¿î ´À³¦À¸·Î ¿Ï¼º.
- °Å½Ç ÂÊ¿¡¼ º¸ÀÌ´Â TLÀå ¿·¸éÀº Àå½ÄÀåÀ¸·Î ½Ã°øÇÏ¿© ¼ö³³ °ø°£À» È®º¸ÇÔ°ú µ¿½Ã¿¡ °ø°£À» ´õ¿í dz¼ºÇÏ°Ô ¿¬ÃâÇÏ¿´´Ù.

¡á ¹æ
- ÀÛÀº¹æÀº ȸºí·ç Ä÷¯¿¡ ³×À̺ñ Æ÷ÀÎÆ® º®Áö¸¦ ½Ã°øÇÏ¿© °Å½Ç°ú ´Ù¸¥ ´À³¦À¸·Î º¯È¸¦ ÁÖ¾ú´Ù.
- ¾È¹æÀº ÇÎÅ©Ä÷¯ º®Áö¿Í Ŭ·¡½ÄÇÑ ´À³¦ÀÇ ºÙ¹ÚÀÌÀåÀ¸·Î °Å½Ç°ú °°Àº ´À³¦ÀÇ ·Î¸ÇƽÇÑ °ø°£À» ¿¬ÃâÇÏ¿´´Ù.

¡á ÈÀå½Ç
- ·¯ºí¸®ÇÑ ÇÎÅ©Ä÷¯ÀÇ Å¸Àϰú ÈÀÌÆ® Ä÷¯ ŸÀÏÀ» ¸ÅÄ¡ÇÏ¿© ·Î¸ÇƽÇÑ °ø°£À» ¸¸µé¾ú´Ù.
¹Ù´ÚÀº ·Î¸ÇƽÇÑ ¹®¾çÀÇ ±×·¹ÀÌ Å¸ÀÏ·Î Â÷ºÐÇÑ ´À³¦À» ´õÇØÁÖ¾ú´Ù.
- ÈÀå½Ç »þ¿ö °ø°£ÀÇ µÞÂÊ ¿©À¯ °ø°£Àº Çö°üÂÊ¿¡¼ ¸Å¸³Çü ½Å¹ßÀåÀ¸·Î Ȱ¿ë, °ø°£À» ¿Ïº®ÇÏ°Ô È°¿ëÇÏ¿´´Ù.